Windsor Run Addresses Senior Housing Demand with New Custom Combination Homes

September 10th, 2025 8:52 PM
By: Newsworthy Staff

Windsor Run's introduction of ten new combination residences addresses critical housing shortages for seniors by converting existing units into larger homes, reducing wait times while meeting growing demand for spacious, accessible living options.

Windsor Run Addresses Senior Housing Demand with New Custom Combination Homes

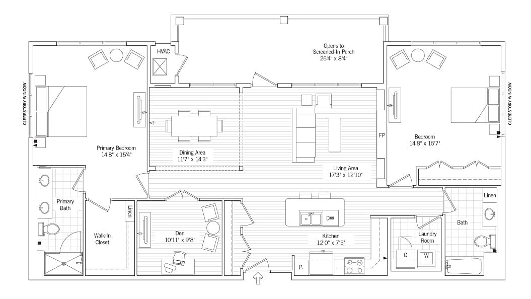
Windsor Run, an Erickson Senior Living community in Matthews, N.C., has introduced ten new two-bedroom, two-bath floor plans created by combining existing units into spacious designs ranging from 1,380 to 2,048 square feet. These homes feature open living areas, large primary suites, and additional storage space in the Park View residence building. Sales Director Ryan Barkley stated that the construction directly responds to Priority List demand, noting that despite the completion of final residence buildings, extended waits persist for popular two-bedroom homes.

The new combination residences offer immediate availability for seniors seeking spacious accommodations without prolonged waiting periods. Priority List members like Brenda and Rick West received early notification about these homes and secured one after experiencing Windsor Run's lifestyle through programs like Live the Life, which allows prospective residents to test community living through activities and campus exploration. The Wests' combination home will include a large living room, two bedrooms on opposite ends, a den, and a screened porch, addressing their needs for puzzle space and storage.

Planning and Moving Consultant Andrea Fitzgibbons provides personalized support to Priority List members, including furniture measurement services and coordination with recommended senior move managers. This comprehensive assistance, part of Priority List benefits, helps residents transition smoothly while ensuring their specific spatial requirements are met. With limited combination residences available, the community encourages prompt action to secure these unique homes that effectively bridge the gap between high demand and available inventory in senior living.

Source Statement

This news article relied primarily on a press release disributed by citybiz. You can read the source press release here,

blockchain registration record for the source press release.
;